


Where Luxury Meets Convenience.

Last Updated : 10 Apr, 2026
Wakad, Pune
Status
Is Launched
Park 59 stands out as a high-value residential asset in Wakad, primarily due to its exceptional connectivity to the BRTS and IT hubs. The project provides well-planned 2 and 3 BHK units featuring premium technical specifications like double-charged vitrified tiles and gypsum finishes. Its location near major hospitals, educational institutions, and the Mumbai-Bangalore Highway ensures high rental demand and appreciation. It is an ideal choice for IT professionals seeking a quality lifestyle within a well-connected and rapidly developing metropolitan neighbourhoods.
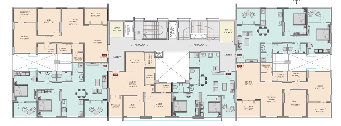
Park 59 is a sophisticated residential project located in Wakad, Pune, designed to offer a seamless blend of luxury and practical convenience. The development features spacious 2 and 3 BHK apartments with RERA carpet areas ranging from approximately 54.83 sq. mt. to 77.20 sq. mt., ensuring diverse options for potential homeowners. Structurally, the project employs an RCC framed structure with external AAC block walls and double-coat plaster for superior insulation and strength. Internal finishes include gypsum-finished walls and 800x800mm double-charged vitrified flooring. The location is a major highlight, situated just 15 steps from the Wakad-Bhosari BRTS road and 2 km from the upcoming MITCOM Metro Station. Residents enjoy immediate proximity to key landmarks such as the Mumbai-Bangalore Highway (1.5 km), Hinjawadi IT Park (3 km), and Balewadi High Street (2 km). The project includes modern essentials like high-speed lifts, designer lobbies, and essential security features for a premium urban living experience.
Wakad is Pune's fastest-growing premium suburb, perfectly positioned near Hinjewadi IT Park with superb highway connectivity. This self-sufficient micro-city offers world-class education, healthcare, shopping and entertainment options within reach. Featuring Pune's best residential projects with modern amenities, Wakad attracts young professionals and families seeking work-life balance. With strong infrastructure, green spaces and consistent property value growth, it represents smart urban living. Wakad's strategic development ensures it remains Pune's most promising real estate destination for years to come.
Initializing Map...
RERA (Real Estate Regulatory Authority) is a government regulatory body established under the Real Estate (Regulation and Development) Act, 2016 in India.
Its primary purpose is to regulate the real estate sector, increase transparency, and protect home buyers from fraud, project delays, and unfair practices.


RERA ID
P52100024649
Shiv Developers is a trusted real estate brand in Pune with over 21 years of experience in delivering quality residential projects across well-connected city locations like Wakad. The developer is known for a strong focus on structural quality, functional layouts, and timely delivery, making them a reliable choice for end-users and investors alike. Shiv Developers emphasizes value-driven homes that balance affordability with modern living standards. Their projects typically feature practical designs, durable construction, and lifestyle amenities that cater to everyday comfort. With a customer-centric approach, the company pays close attention to legal clarity, RERA compliance, and transparent dealings. Over the years, Shiv Developers has built a solid reputation for consistency and trust, reflected in positive homebuyer feedback. By combining experience, ethical practices, and market understanding, Shiv Developers continues to contribute meaningfully to Pune’s growing residential landscape, especially in high-demand micro-markets like Wakad.
Loading reviews...
Get answers to the most common questions about Park59 in West Pune
Park59 is currently under construction in the area, the city. The project is progressing as per RERA timelines.
Park59 is located at Park 59, S.no 259, Wakad - Nashik Phata BRTS Rd, Kaspate chowk, Wakad, Pimpri-Chinchwad, Maharashtra - PIN 411057. It is well-connected to major roads and civic infrastructure.
Park59 is developed by a reputed developer, a reputed real estate developer in the region.
The RERA registration number of Park59 is P52100024649. You can verify it on the official RERA portal.
Park59 consists of 5 towers with 13 floors each, offering a premium vertical living experience.
The expected possession date of Park59 is September 2026, as per the RERA filing.
Park59 offers 2BHK, 3BHK apartments, each designed for modern comfortable living.
The total plot area of Park59 is 5599.98 sqmts, thoughtfully planned for maximum green and recreational spaces.
Amenities at Park59 include 24-7-electricity-backup, 24-7-water-supply, landscaped-gardens, multipurpose-lawn, star-gazing, children-play-area and more.
Park59 is conveniently located near major transport hubs, ensuring seamless connectivity for daily travel.
The price of apartments in Park59 starts at competitive rates, offering great value in the the area real estate market.
NOBO AI
AI Assistant is Online
Chat with our AI assistant for instant answers on West Pune properties—pricing, locations, amenities, and availability. Available 24/7 to guide you at every step.